Descrizione

• Struttura, integrante la griglia anti-volatili, e base di fissaggio al tetto in lamiera d’acciaio zincata; una coppia di cerniere permette il ribaltamento della piastra di supporto del ventilatore, per agevolare gli interventi di ispezione e manutenzione.
• Copertura in alluminio protetto dalla corrosione; facilmente rimovibile, resistente agli urti, alle alte temperature e all’azione degli agenti atmosferici, si caratterizza per la forma complessiva, ottimizzata per evitare l’ingresso di pioggia nel sottostante condotto, anche in presenza di forti temporali.
• Girante centrifuga ad alta efficienza del tipo a pale rovesce, autopulente, in lamiera d’acciaio zincato.
• Motore ad alta efficienza, conforme al Reg. Ecodesign 2019/1781 per minimizzare i consumi, con albero montato su cuscinetti a sfere per accrescere la durata. Il grado di protezione è IP55, la classe di isolamento è F. Interruttore di sicurezza integrato disponibile a richiesta.
• Alimentazione trifase 230-400V / 50Hz.
• Temperature di funzionamento comprese da -25°C e +60°C; temperatura massima dell’aria trattata (funzionamento continuo, servizio S1) 80°C (120°C su richiesta). Temperatura massima 400°C per 2h (servizio S2) certificata APPLUS.
• Classe di isolamento elettrico I (richiesta messa a terra).
Leggi tutta la descrizioneRichiudi la descrizione

Certificazioni

  • CE CE
  • APPLUS APPLUS

Scheda Tecnica

  • Classe Motore
    F
  • Corrente Assorbita a 230 V (A)
    4,83
  • Corrente Assorbita a 400 V (A)
    2,78
  • Frequenza (Hz)
    50
  • Grado Protezione IP
    55
  • Peso (Kg)
    103
  • Potenza assorbita max (W)
    1100
  • Temperatura aria aspirata max (°C)
    120
  • Tensione (V)
    230/400
  • Portata max (m³/h)
    10020
  • RPM
    925
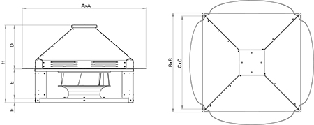
  • Dimensione A (mm)
    1193
  • Dimensione B (mm)
    954
  • Dimensione C (mm)
    895
  • Dimensione D (mm)
    420
  • Dimensione E (mm)
    350
  • Dimensione F (mm)
    47,50
  • Dimensione H (mm)
    818
quota
Curva_JPG_15269-Curve_per_Catalogo
Sei interessato?
Se sei interessato a questo prodotto, contattaci oppure trova l’agenzia di vendita più vicina a te.

Accessori

Scopri gli accessori correlati al prodotto

SIL-C 560/560                  960056056
SIL-C 560/560 960056056
Silenziatore circolare progettato per ridurre la rumorosità di torrette canalizzate. Può richiedere flange opzionali di raccordo per il collegamento diretto a ventole (contattare i...
SIL-C 560/840                  960056084
SIL-C 560/840 960056084
Silenziatore circolare progettato per ridurre la rumorosità di torrette canalizzate. Può richiedere flange opzionali di raccordo per il collegamento diretto a ventole (contattare i...
SIL-C 560/1120                 960056112
SIL-C 560/1120 960056112
Silenziatore circolare progettato per ridurre la rumorosità di torrette canalizzate. Può richiedere flange opzionali di raccordo per il collegamento diretto a ventole (contattare i...
SIL-CN 560/560                 961056056
SIL-CN 560/560 961056056
Silenziatore circolare progettato per ridurre la rumorosità di torrette canalizzate, comprensivo di nucleo interno per incrementare l’effettuo di attenuazione del rumore. Può richi...
SIL-CN 560/840                 961056084
SIL-CN 560/840 961056084
Silenziatore circolare progettato per ridurre la rumorosità di torrette canalizzate, comprensivo di nucleo interno per incrementare l’effettuo di attenuazione del rumore. Può richi...
SIL-CN 560/1120                961056112
SIL-CN 560/1120 961056112
Silenziatore circolare progettato per ridurre la rumorosità di torrette canalizzate, comprensivo di nucleo interno per incrementare l’effettuo di attenuazione del rumore. Può richi...
BAD 14                         960003464
BAD 14 960003464
Doppia flangia flessibile circolare ammortizzata, ideale per collegare ogni torretta alla tubazione sottostante evitando il propagarsi di vibrazioni potenzialmente dannose per il c...
BTI 915 D=0 C=B
BTI 915 D=0 C=B
Supporto opzionale per installazione della torretta in corrispondenza di tetti piatti (inclinazione pari a 0°). Supporti alternativi, da installare su tetti inclinati, sono dispon...
CMP-HUT 500X510               CMPHUT5051
CMP-HUT 500X510 CMPHUT5051
Serranda di non ritorno, adatta a flussi, anche lievemente turbolenti, di velocità fino a 18 m/s. Quando la torretta non è in funzione il dispositivo impedisce il passaggio dell'ar...
KV HEATMASTER 560              KVKNTR560
KV HEATMASTER 560 KVKNTR560
kit, realizzato in alluminio, per la conversione dei modelli HEATMASTER F400 560 in unità a scarico verticale.
IREM INVERTER 230 7A
IREM INVERTER 230 7A
Regolatore di velocità a variazione di frequenza; alimentazione monofase, uscita trifase, carico massimo 7 A. Dotato di pannello con display e scheda PID. Certificazioni: CE/UL/CSA...
IRET INVERTER 400 3.6A
IRET INVERTER 400 3.6A
Regolatore di velocità a variazione di frequenza; alimentazione e uscita trifase, carico massimo 3,6 A. Dotato di pannello con display e scheda PID. Certificazioni: CE/UL/CSA/EN/GO...
BTI+AMC 915 D=0 C=B
BTI+AMC 915 D=0 C=B
Supporto opzionale BTI completo di flangia di connessione al raccordo per accessori circolari come silenziatori, flange antivibranti BAD e flange di collegamento AC; adatto all’ins...
BTI+ACMP 915 D=0 C=B
BTI+ACMP 915 D=0 C=B
Supporto opzionale BTI completo di flangia ACMP per la connessione alla serranda serie CMP-HUT; adatto all’installazione della torretta in corrispondenza di tetti piatti (inclinazi...
BTI+ACMP+AMC 915 D=0 C=B
BTI+ACMP+AMC 915 D=0 C=B
Supporto opzionale BTI completo di flangia ACMP per la connessione alla serranda serie CMP-HUT e di flangia di connessione al raccordo di accessori circolari come silenziatori, fla...
MFLAC 56
MFLAC 56
Flangia di raccordo a tubazioni circolari
EMC-M FTR 7A
EMC-M FTR 7A
Filtro EMC monofase per carichi fino a 7 A. Da abbinare a regolatori di velocità a variazione di frequenza IREM INVERTER 230. Applicato al dissipatore di calore del variatore di fr...
EMC-T FTR 3.6A
EMC-T FTR 3.6A
Filtro EMC trifase per carichi fino a 3,6 A. Da abbinare a regolatori di velocità a variazione di frequenza IRET INVERTER 400. Applicato al dissipatore di calore del variatore di f...
SWT 25 3P
SWT 25 3P
Interruttore di sicurezza di tipo "start-stop", conforme ai requisiti IEC 60947-1 e IEC 60947-3. Grado di protezione: IP65. Dotato di un contatto ausiliario. Utile per tagliare la ...
ASIL 915-560        A-5087091500BSILC560
ASIL 915-560 A-5087091500BSILC560
Supporto per accessori circolari come silenziatori, flange antivibranti BAD e flange di collegamento AC all'interno della base inclinata BTI utilizzando il supporto AMC.
I cookie ci aiutano a fornire i nostri servizi. Utilizzando tali servizi, accetti l'utilizzo dei cookie da parte nostra. Info